注意:因为学习平台题目是随机,选择题选项也是随机,一定注意答案对应的选项,同学们在本页按“Ctrl+F”快捷搜索题目中“关键字”就可以快速定位题目,还是不懂的话可以看这个:快速答题技巧
我的作业:95分 已评分作业最终成绩取最高
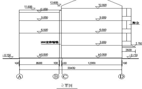
根据课程导学——学习实践中“实验及技能训练”发布的广联达一号办公楼实例图纸,列出该工程混凝土柱对应的工程量清单项并计算相关工程量。
要求:请按13《规范》填写工程量清单中序号、项目编码、项目名称、项目特征、计量单位、工程量。(工程量计算及工程量清单所需表格见附件)
完成后上传工程量计算表及相应的分部分项工程量清单。
未经授权,禁止转载,发布者:形考达人
,出处:https://www.xingkaowang.com/18710.html
免责声明:本站不对内容的完整性、权威性及其观点立场正确性做任何保证或承诺!付费为资源整合费用,前请自行鉴别。
免费答案:形考作业所有题目均出自课程讲义中,可自行学习寻找题目答案,本站内容可作为临时参考工具,但不应完全依赖,建议仅作为辅助核对答案的工具,而非直接使用!
